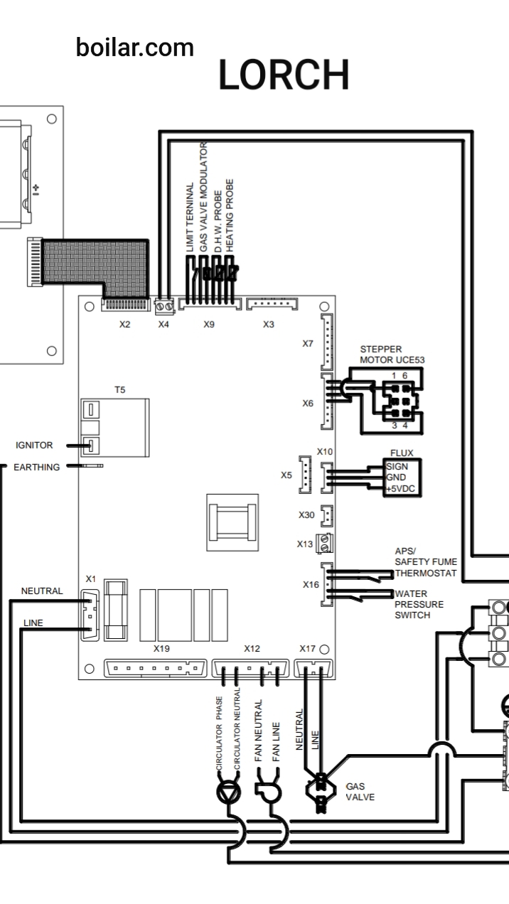
تعمیر پکیج نقشه برد پکیج لورچ 22/06/202014/08/2024 آموزش تعمیر برد پکیج Tags تعمیر پکیجتعمیر پکیج اصفهاننقشه برد پکیج لورچ هادی غیاث بیگی تعمیر پکیج اصفهان Website http://hadighias.ir Read more articles Previous Postراهنمای خرید پکیجNext Postنقشه برد بوتان 2 thoughts on “نقشه برد پکیج لورچ” مرسی پاسخ لطفاً علاوه بر نقشه برد لورچ مدل آدنا لیست ارورها و پارامترهای مربوط به تنظیم برد اصلی را نیز بزرگواری کرده ودر سایت قراردهید. باتشکر از الطاف و زحمات صمیمانه وبیدریق شما. 《مهدی فیاضی زاده》 پاسخ دیدگاهتان را بنویسید لغو پاسخنشانی ایمیل شما منتشر نخواهد شد. بخشهای موردنیاز علامتگذاری شدهاند *دیدگاه * نام * ایمیل * وب سایت You May Like توصیه هایی در مورد خطرات، ایمنی، نگهداری و سرویس تعمیر برد پکیج اصفهان Hadi ghias beigi
لطفاً علاوه بر نقشه برد لورچ مدل آدنا لیست ارورها و پارامترهای مربوط به تنظیم برد اصلی را نیز بزرگواری کرده ودر سایت قراردهید. باتشکر از الطاف و زحمات صمیمانه وبیدریق شما. 《مهدی فیاضی زاده》 پاسخ
مرسی
لطفاً علاوه بر نقشه برد لورچ مدل آدنا لیست ارورها و پارامترهای مربوط به تنظیم برد اصلی را نیز بزرگواری کرده ودر سایت قراردهید.
باتشکر از الطاف و زحمات صمیمانه وبیدریق شما.
《مهدی فیاضی زاده》