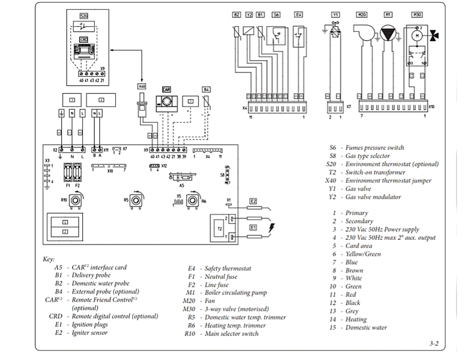
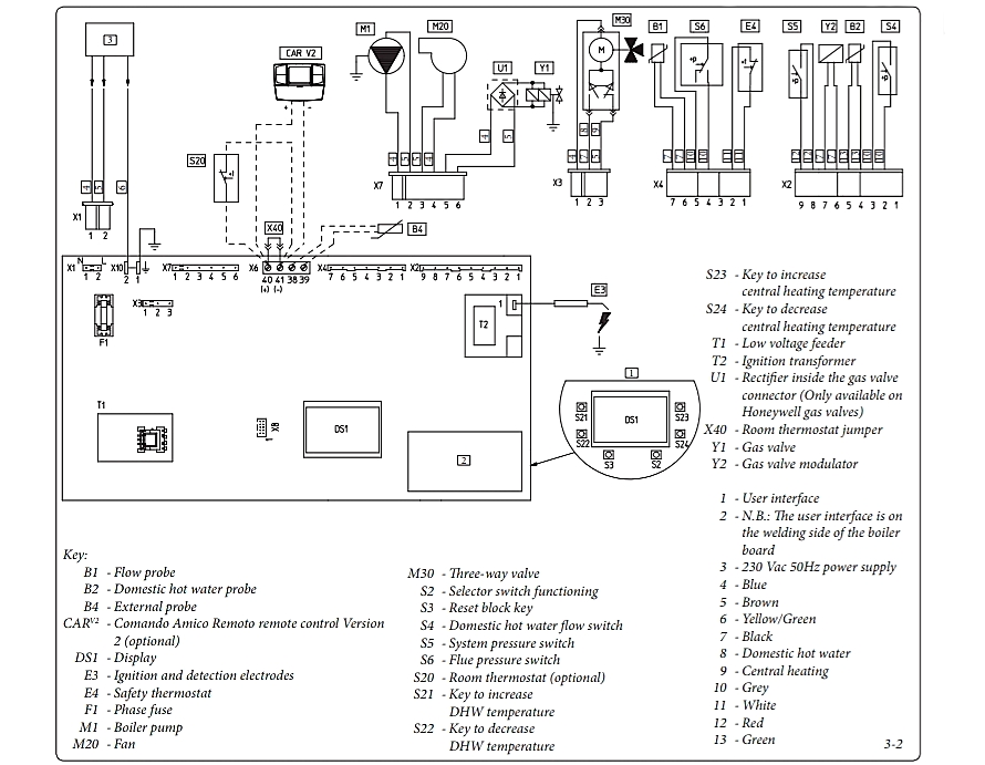
تعمیر پکیج نقشه برد پکیج ایمرگاز 28/06/202014/08/2024 آموزش تعمیر برد پکیج Tags تعمیر پکیج اصفهانعادینقشه برد پکیج ایمرگازهادی غیاث بیگی هادی غیاث بیگی تعمیر پکیج اصفهان Website http://hadighias.ir Read more articles Previous Postنقشه برد مگاترم و مگاپروNext Postنقشه برد وستن و بایماک دیدگاهتان را بنویسید لغو پاسخنشانی ایمیل شما منتشر نخواهد شد. بخشهای موردنیاز علامتگذاری شدهاند *دیدگاه * نام * ایمیل * وب سایت You May Like مالکیت برند خدمات تخصصی اصفهان پکیج هادی غیاث بیگی روش تعمیر برد پکیج شوفاژ توصیه هایی در مورد خطرات، ایمنی، نگهداری و سرویس