تعمیر پکیج نقشه برد وستن و بایماک 28/06/202014/08/2024 آموزش تعمیر برد پکیج Tags نقشه برد پکیج . هادی غیاث بیگی تعمیر پکیج اصفهان Website http://hadighias.ir Read more articles Previous Postنقشه برد پکیج ایمرگازNext Postنقشه برد پکیج وایلانت 2 thoughts on “نقشه برد وستن و بایماک” سلام این مربوط به کدوم مدل از پکیج وستن هستش؟ پاسخ نقشه مربوط به Westen Pulsar D 24 است که در ایران به اسم وستن دیجیتال میشناسن. پاسخ دیدگاهتان را بنویسید لغو پاسخنشانی ایمیل شما منتشر نخواهد شد. بخشهای موردنیاز علامتگذاری شدهاند *دیدگاه * نام * ایمیل * وب سایت You May Like عیب یابی پکیج ایرفل وستن و باکسی آنالوگ تعمیر برد پکیج بوش در اصفهان
سلام این مربوط به کدوم مدل از پکیج وستن هستش؟
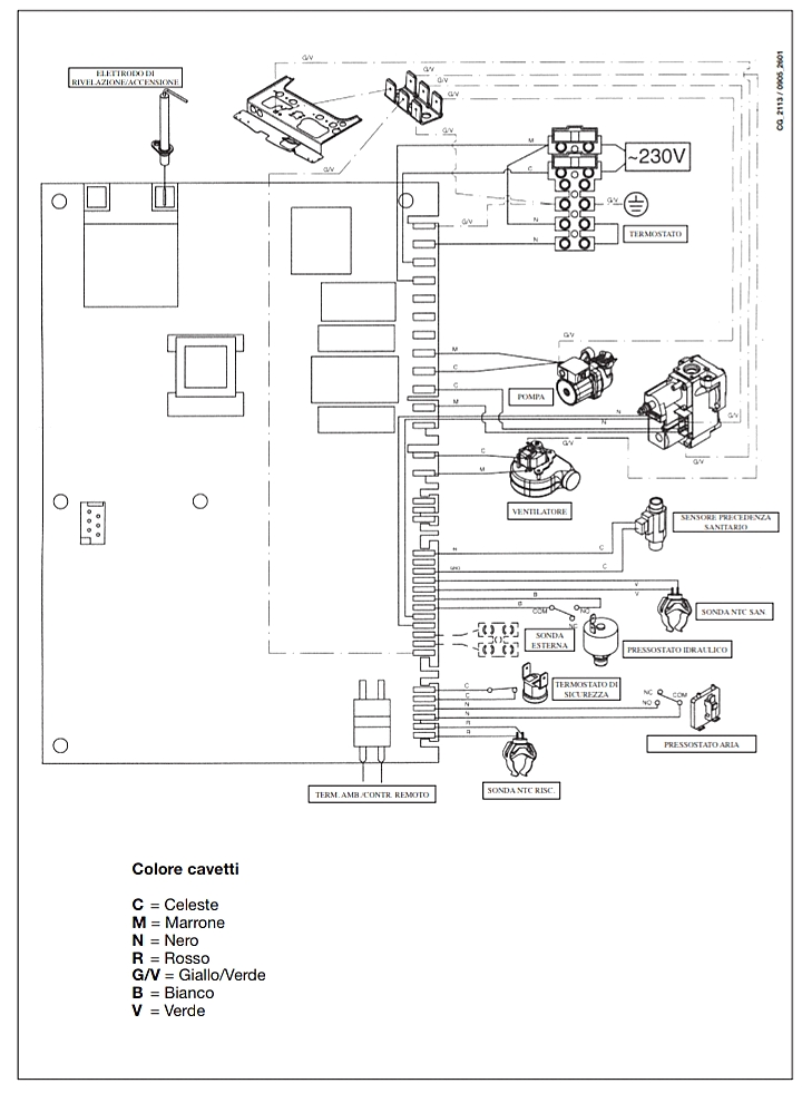
نقشه مربوط به Westen Pulsar D 24 است که در ایران به اسم وستن دیجیتال میشناسن.